Trụ sở này sẽ được gọi là “Midpoint”.

Google đang dự kiến xây dựng một trụ sở mới tại thung lũng Silicon, nằm ngay cạnh một trung tâm mới chuyên về phần cứng.
Từ năm 2018, Google đã chi ra hơn 389 triệu USD để mua đất ở bắc San Jose, California, đồng thời tung ra nhiều tài liệu chi tiết cho thấy kế hoạch đối với khu vực này. Theo đó, trụ sở được cho là chuyên về R&D (nghiên cứu và phát triển) của Google có một trung tâm phần cứng và một toà nhà công nghệ mới nằm độc lập, có thể tiếp nhận khách ghé tham quan – cả hai sẽ được đặt ở giữa các trụ sở bây giờ của hãng ở Mountain View và toà nhà đa năng vừa được thông qua cách đây chưa lâu ở San Jose.
Có tên là “Midpoint”, toà nhà công nghệ tương lai của Google sẽ bao gồm 5 khu văn phòng kết nối với nhau thông qua một cầu đi bộ nối từ bên này sang bên kia đường. Nó sẽ nằm liền kề với 3 toà nhà công nghiệp, nơi thực hiện các nghiên cứu của bộ phận phần cứng, bao gồm các sản phẩm Nest.
Trung tâm phần cứng
Google đã lên kế hoạch xây dựng một trung tâm R&D bao gồm hàng trăm hạng mục nâng cấp cho ba toà nhà công nghiệp của họ, trong đó có phòng họp, khu vực khách, bếp, các nền tảng trang thiết bị, băng chuyền, và một nhà kho vận chuyển hàng hoá. Kế hoạch này có đề cập đến “Google Hardware” và “Nest”, vốn là mảng kinh doanh nhà thông minh của công ty. Những toà nhà này cũng sẽ là nơi lưu trữ nhu yếu phẩm và các thiết bị thông dụng như đồ nội thất cho các toà nhà lân cận.

Trụ sở mới được Google công bố trong bối cảnh gã đồ sộ tìm kiếm đang tìm cách tự tay sản xuất phần cứng dưới thời Rick Osterloh, lãnh đạo mảng thiết bị và dịch vụ, bao gồm Nest, loa thông minh Google Home, dòng smartphone flagship Pixel, và laptop Pixelbook. Bộ phận phần cứng của Google thời gian qua có doanh thu tương đối “bèo” khi so với các dịch vụ internet cốt lõi như Search, YouTube, và Google Cloud, nhưng các lãnh đạo Google mới đây đã tuyên bố sẽ tìm mọi cách để thu vén thêm thị phần trong năm nay.
Tuần qua, Google công bố loại bỏ chip Qualcomm khỏi các sản phẩm trong tương lai và thay bằng những con chip “nhà làm”, bao gồm cả chip cho smartphone Pixel. Hãng hiện đang tiêu dùng những con chip của riêng mình cho ngày càng nhiều trung tâm dữ liệu đặt khắp nơi trên toàn nước Mỹ. Hồi tháng 1, Google thâu tóm công ty phần cứng theo dõi thể chất Fitbit, và vụ việc này đã bị các cơ quan quản lý giám sát chặt chẽ trong hơn một năm liền.
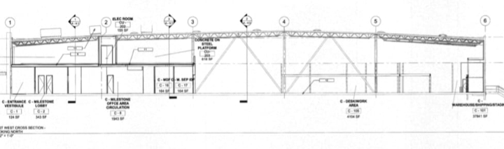
Trong số các toà nhà mới, sẽ có một toà nhà được quan tâm đặc biệt. 20% của toà nhà này được thiết kế để làm văn phòng, và 80% cho sản xuất, lưu trữ, phân phối, và các mục đích khác. Công ty đã lên kế hoạch cho toà nhà này ít nhất từ năm 2018. Bản vẽ thiết kế cho thấy không gian bên trong của nó có thể chứa tối đa 169 người, nhưng người phát ngôn Google từ chối nêu rõ sẽ có chính xác bao nhiêu nhân viên làm việc tại đây.

Một bản vẽ khác miêu tả nội thất của toà nhà được bố trí theo chủ đề đại dương, bao gồm nhiều tác phẩm nghệ thuật, các vật phẩm trang trí như tấm ván mục, vỏ sò… đặt mua từ Etsy, và một tấm ván trượt treo trên trần phòng họp và phòng đào tạo. Các phòng họp sẽ được đặt tên theo các khu vực ven biển trong và xung quanh Monterey, California, bao gồm Cannery Row, Pacific Grove, Fisherman’s Wharf, và Del Monte.
Những thay đổi khác có thể được thực hiện bao gồm tái cơ cấu lại bãi đỗ xe, trang thiết bị mái nhà, nâng cấp ADA, và mặt tiền toà nhà.
Bản vẽ cho thấy toà nhà mới này sẽ có 794 chỗ đậu xe, bao gồm không gian cho hơn 20 xe tải hoặc bán tải cỡ lớn cũng như nhiều trạm sạc EV và cả một kho xăng nữa.
Toà nhà công nghệ “Midpoint”
Nằm bên cạnh trung tâm công nghiệp là một toà nhà công nghệ truyền thống hơn mang tên “Midpoint”, có thể chứa tối đa 3.500 nhân viên. Điều đáng nói là toà nhà này thực ra là các văn phòng hiện có được bố trí lại về mặt cảnh quan và cấu trúc, thay vì xây mới hoàn toàn.

Công ty không đưa ra khung thời gian hoàn thành toà nhà Midpoint này. Theo Vini Bhargava, giám đốc dự án thuộc mảng địa ốc và văn phòng của Google, “mục tiêu của dự án là cải thiện tính an toàn cho người đi bộ và xe đạp, cũng như khả năng kết nối giữa các toà nhà và cộng đồng xung quanh“
Toà nhà mới cũng cho thấy kế hoạch mở cửa hoà nhập với các cộng đồng phi công nghệ xung quanh của Google, đồng thời cũng cho thấy Google dự kiến đưa nhiều nhân viên quay trở lại văn phòng hơn nữa sau khi đại dịch tạm lắng.

Bhargava nói thêm rằng họ muốn tạo dựng thêm cảnh quan phục vụ “hội họp và giao lưu ngoài trời dành cho các nhân viên tại đây“. Để làm điều đó, Google sẽ biến các bãi đỗ xe bê-tông thành những khu vực cảnh quan xanh, tiêu dùng nước tái chế cũng như trồng cây để tạo nên hệ thống làm mát và tạo bóng râm ngẫu nhiên. Những điểm mới này nhằm “cải thiện môi trường sống hoang dã và tạo cơ hội thụ phấn ngẫu nhiên cho cây cối“.

Cuối cùng là một “trung tâm quá cảnh mới”, với xe bus, bãi đỗ xe đạp, và hệ thống cầu vượt dành cho nhân viên để giảm thiểu những chuyến xe chỉ có một người đi. Trung tâm này còn có phòng tắm, tủ chứa đồ và phòng thay quần áo dành cho mọi người nữa. Dịch vụ xe bus trong trung tâm mới sẽ đưa nhân viên Google qua khu vực Bay Arena, mà Bhargava nói rằng “có thể giảm đáng kể số lượng nhân viên lái xe một mình đến nơi làm việc so với mặt bằng chung của khu vực“.
Minh.T.T (theo CNBC)
Nguồn: Sưu Tầm








Trả lời